Trg Martina Posedarskog 1
Odobrena financijska sredstva u iznosu 1.017.887,50 eura za projekt "Pilot projekt razvoja zelene infrastrukture i/ili kružnog gospodarenja prostorom i zgradama Općine Posedarje".
U postupku dodjele bespovratnih sredstava u okviru Poziva na dostavu projektnih prijedloga "Pilot projekt razvoja zelene infrastrukture i/ili kružnog gospodarenja prostorom i zgradama" , Općina Posedarje zaprimila je Odluku o financiranju Ministarstva prostornog uređenja, graditeljstva i državne imovine u iznosu od 1.017.887,50 eura za projekt "Pilot projekt razvoja zelene infrastrukture i/ili kružnog gospodarenja prostorom i zgradama Općine Posedarje".
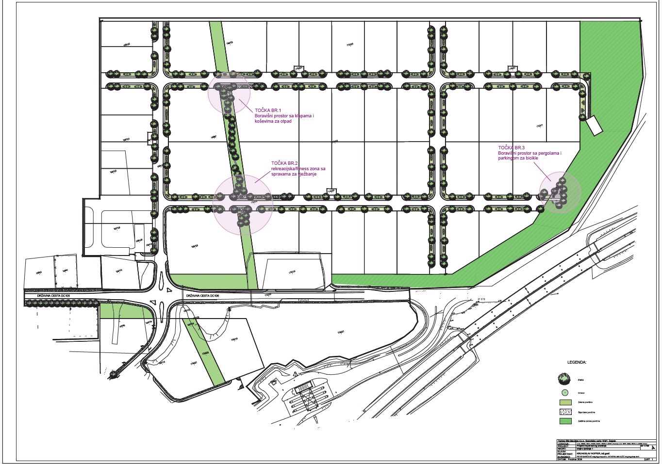
Cilj projekta je izgradnja zelene urbane mreže koja povezuje 3 ključne točke u industrijskoj zoni kroz sadnju autohtonih stabala, uređenje zelenih koridora i postavljanje urbane oprema, a osim toga, projekt uključuje rekonstrukciju i prenamjenu zgrade društvenog doma u Slivnici u funkcionalni prostor koji će koristiti lokalne udruge, čime će se ojačati lokalne inicijative.
